Atvirukai ÄŒatai Forumas Piguva Pipedija PoPo blogai

Dabar yra 2026 Kovas 12, 05:58

Visos datos yra UTC + 2 valandos




Naujos temos kūrimas Atsakyti į temą  [ 1 pranešimas ] 
Autorių Žinutė
 Pranešimo tema: Parduodu nauja medini namuka
StandartinėParašytas: 2006 Rugpjūtis 2, 13:52 
Atsijungęs

Užsiregistravo: 2006 Rugpjūtis 2, 13:49
Pranešimai: 1
Parduodu medini namuka su mansarda. Naujas, 6x8. Pilnai sukomplektuotas su lauko ir vidaus durimis, laiptais, langais(stiklo paketai), stogo danga ir pasiltinimu.Prireikus atvezu ir surenku. Kaina 39000 Lt. Tel. 8-63197981


Prikabinti failai:
sonines sienos D ir E.jpg
sonines sienos D ir E.jpg [ 45.91 KB | Peržiūrėta 643 kartus(ų) ]
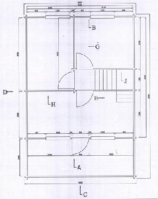
antro auksto planas.jpg
antro auksto planas.jpg [ 40.46 KB | Peržiūrėta 565 kartus(ų) ]
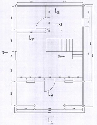
pirmo auksto planas.jpg
pirmo auksto planas.jpg [ 33.17 KB | Peržiūrėta 674 kartus(ų) ]
sienos A ir B.jpg
sienos A ir B.jpg [ 59.91 KB | Peržiūrėta 634 kartus(ų) ]
Priekis siena C.jpg
Priekis siena C.jpg [ 52.23 KB | Peržiūrėta 715 kartus(ų) ]
Į viršų
 Aprašymas  
 
Rodyti paskutinius pranešimus:  Rūšiuoti pagal  
Naujos temos kūrimas Atsakyti į temą  [ 1 pranešimas ] 

Visos datos yra UTC + 2 valandos


Dabar prisijungę

Vartotojai naršantys šį forumą: Registruotų vartotojų nėra ir 1 svečias


Jūs negalite kurti naujų temų šiame forume
Jūs negalite atsakinėti į temas šiame forume
Jūs negalite redaguoti savo pranešimų šiame forume
Jūs negalite trinti savo pranešimų šiame forume
Jūs negalite prikabinti failų šiame forume

Ieškoti:
Pereiti į:  
Powered by phpBB © 2000, 2002, 2005, 2007 phpBB Group
Vertė Vilius Šumskas © 2003, 2005, 2007

Paspauskite ant banerio - taip pareklamuosite savo Laikas.lt :-)

468x60.lt - Keiskimes reklaminemis antrastemis


Burgzt Banner Exchange


Installation by Brigin